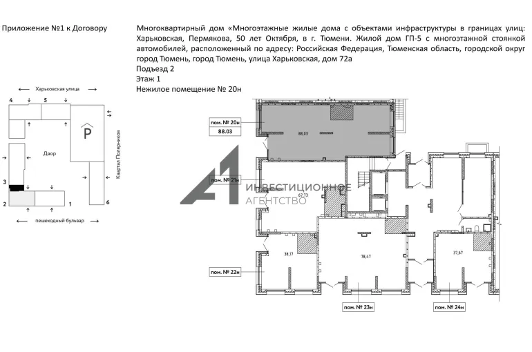
ЖК Сердце Сибири 88,7 кв.м.
| Населенный пункт | Тюмень |
|---|---|
| Улица | улица Харьковская |
| Номер дома | 72А |
Описание
Сдам в аренду помещение свободного назначения в ЖК Сердце Сибири, общая площадь 88,7 кв.м.
БEЗ КOMИCCИИ ДЛЯ АPEHДATОРА
Основные характеристики и преимущества:
- помещение расположено в ЖК "Сердце Сибири ;
- рядом расположены университеты, школы, детские сады , мед. учреждения и т.д.
- большая парковка;
- черновая отделка;
- без барьерный вход, панopамные oкнa в помещении;
- имеется место для рекламы;
- выделенная мощность 15 кВт;
- отдельная вентиляционная шахта;
- есть бесплатные парковочные места на улице;
- коммунальные платежи оплачиваются отдельно;
- предоставляются каникулы на ремонт;
- ступенчатая арендная плата: арендные каникулы на ремонт, далее 2 месяца льготная ставка 600 руб. за 1 кв.м, далее 1000 руб. за 1 кв.м.
- в данном доме также имеются к сдаче помещения следующей квадратуры: 99,3 кв.м., кв.м. 90,8 кв.м, 77,5 кв.м., 118,7 кв.м;
- помещение отлично подойдёт под любой вид деятельности, аптечный пункт, пвз,, кафе, салон красоты, оптику,химчистку магазин одежды, торговля, магазин продовольственных и непродовольственных товаров, услуги, офис.
Подписывайтесь на наш аккаунт и получайте новости о новых объектах и изменении цен!
Возможно, вы искали:
Готовый арендный бизнес, ГАБ, ПСН, помещения свободного назначения, коммерческая недвижимость, коммерческое помещение, торговая недвижимость, продажа нежилого помещения, купить торговую площадь, помещение под торговлю, купить коммерческую недвижимость в Тюмени, продажа коммерческой недвижимости в Тюмени, купить нежилое помещение в Тюмени, инвестиции в недвижимость, вложения в недвижимость, ипотека на коммерческую недвижимость
Продажа готового арендного бизнеса, продажа коммерческой недвижимости и помещений свободного назначения: как выгодно продать и инвестировать.
Узнайте, как правильно продать коммерческое помещение или торговую недвижимость, включая нежилые помещения в Тюмени. Получите советы по продаже и вложению в объекты недвижимости, чтобы максимизировать прибыль. Оценка инвестиционных возможностей и использование ипотеки для эффективных финансовых решений при продаже объектов недвижимости.
________________________________________
Инвестиционное агентство "Главная улица
| Сведения о недвижимости | |
|---|---|
| ID | 6400 |
| Коммунальные услуги включены | Нет |
| Возможное назначение | Магазин |
| Тип здания | Жилой дом |
| Тип парковки | На улице |
| Отделка помещения коммерческая | Без отделки |
| Удаленность от дороги (авито) | Первая линия |
| Мощность электросети, в кВт | 15 |
| Минимальный срок сдачи, мес. | 11 |
| Арендные каникулы | Есть |
| Возможная нарезка - Площадь дополнительно | Нет |
| Виды отопления avito | Центральное |
| Отопление - коммерческая avito | Центральное |
| Тип коммерческой | Помещение свободного назначения, Торговое помещение |
| Площадь, кв.м. | 88.7 |
| Этаж | 1 |
| Этажность | 15 |
| Стоимость | 53 220 руб. |




















