Аренда промки в черте города
| Населенный пункт | Тюмень |
|---|---|
| Улица | улица Ветеранов Труда |
| Номер дома | 11 |
Описание
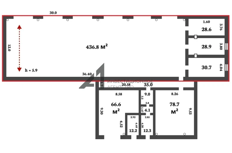
Аренда производственного помещения, общей площадью 525м² с кран-балкой
БЕЗ КОМИССИИ ДЛЯ АРЕНДАТОРА
Основные характеристики и преимущества:
✔ Отдельный заезд + удобная транспортная доступность (1-я линия)
✔ Электроснабжение: 200 кВт
✔ 6 ворот (высота 3,8 м × ширина 3,6 м)
✔ Кран-балка грузоподъёмностью 3,2 т (крановые пути рассчитаны на 5+ т)
✔ Готовые решения для СТО: вытяжка выхлопных газов, подъёмники для грузовой техники
✔ ВРИ: Производственное назначение
Дополнительные возможности:
🔹 Расширение площади – доступно до 727,9 м²
🔹 Офисные помещения – 3 × 30 м² (по запросу)
Идеально для:
-
СТО грузовых автомобилей
-
Производственных и складских комплексов
-
Логистических и ремонтных предприятий
Подписывайтесь на наш аккаунт и получайте новости о новых объектах и изменении цен!
______________________________________
Инвестиционное агентство «Главная улица»
| Сведения о недвижимости | |
|---|---|
| ID | 6188 |
| Коммунальные услуги включены | Нет |
| Тип здания | отдельно стоящее здание |
| Тип парковки | На улице |
| Отделка помещения коммерческая | Чистовая |
| Удаленность от дороги (авито) | Первая линия |
| Мощность электросети, в кВт | 200 |
| Виды отопления avito | Центральное |
| Тип коммерческой | Производственное помещение |
| Площадь, кв.м. | 525 |
| Этаж | 1 |
| Стоимость | 472 500 руб. |

























