Продам под пищевое производство
| Населенный пункт | Тюмень |
|---|---|
| Улица | улица Авторемонтная |
| Номер дома | 8 стр 12 |
Описание
Возможность купить два здания коммерческого назначения и земельный участок без рисков КРТ.
Без комиссии для покупателя
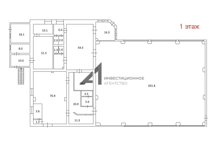
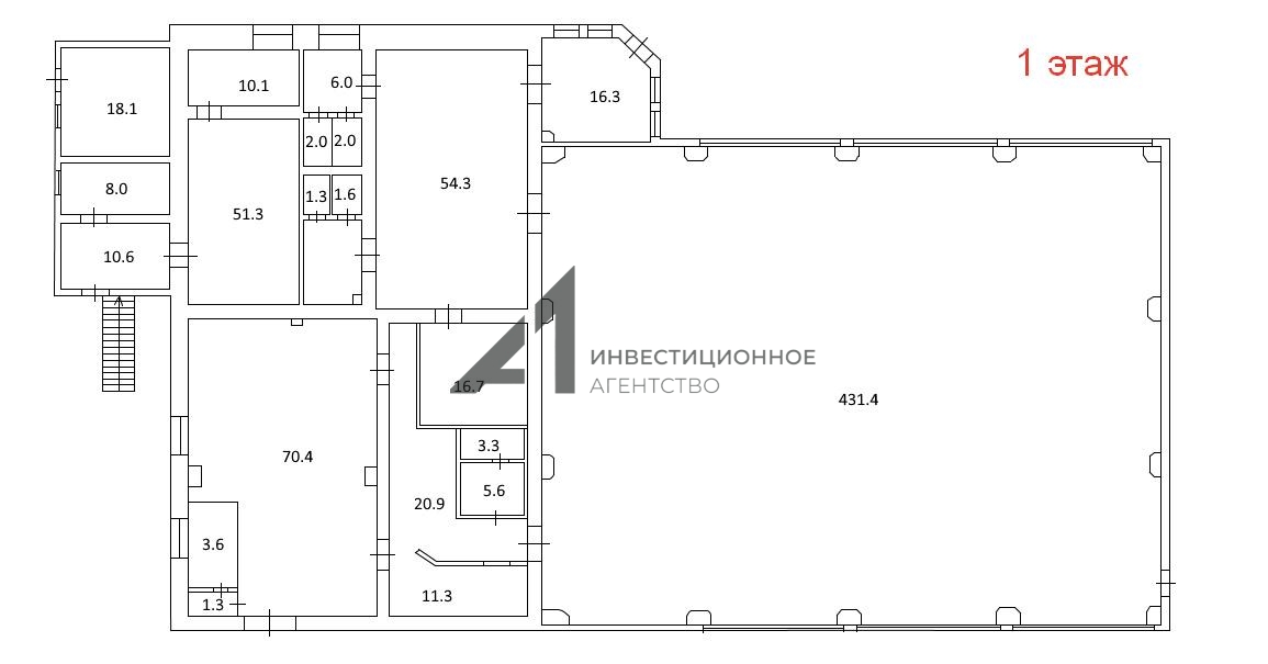
- общая площадь помещений комплекса - 1170 кв.м;
- просторный, светлый зал, площадью 400 кв. м. и потолками высотой 7 м;
- отдельное здание, 100 кв.м.
- офисные помещения с отдельным входом и подъездом;
- комплекс размещен на участке 2500 кв. м, прилегающая территория асфальтирована, огорожена и снабжена шлагбаумом и воротами;
- комплекс размещен в районе с отличной транспортной доступностью и высоким транспортным трафиком;
- подъезд возможен как с ул. Авторемонтной, так и с улицы Ямской;
- въезд на территорию базы с двух сторон
Готовы ответить на Ваши вопросы, до встречи на показе.
Подписывайтесь на наш аккаунт и получайте новости о новых объектах и изменении цен!
________________________________________
Инвестиционное агентство "Главная улица"
| Сведения о недвижимости | |
|---|---|
| ID | 2778 |
| Площадь участка, сот | 25 |
| Возможное назначение | Другое |
| Тип здания | отдельно стоящее здание |
| Тип парковки | На улице |
| Отделка помещения коммерческая | Чистовая |
| Удаленность от дороги (авито) | Вторая линия и дальше |
| Этаж дополнительно (авито) | Несколько этажей |
| Мощность электросети, в кВт | 50 |
| Арендные каникулы | Нет |
| Виды отопления avito | Центральное, Газовое |
| Тип коммерческой | Здание |
| Площадь, кв.м. | 1170 |
| Этаж | 1 |
| Этажность | 3 |
| Стоимость | 65 000 000 руб. |













