Офис на бульваре Гондатти, 421м2
| Населенный пункт | Тюмень |
|---|---|
| Улица | улица Николая Гондатти |
| Номер дома | 1/4 |
Описание
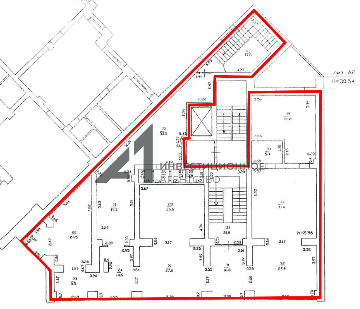
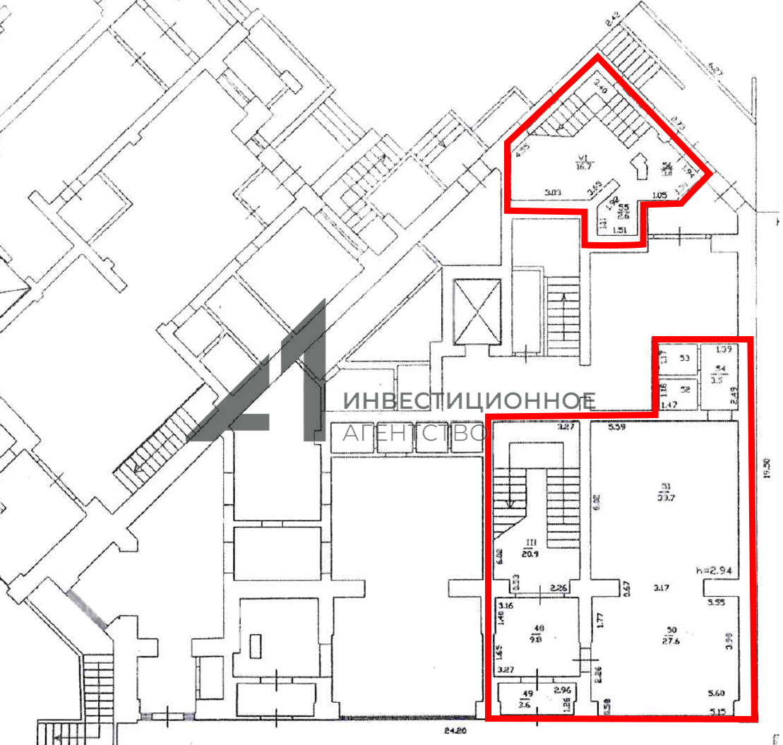
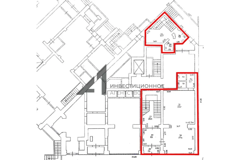
Продаётся офисное помещение на пешеходном бульваре ул. Николая Гондатти, общей площадью 421кв.м.
Без комиссии для покупателя
Основные характеристики и преимущества:
- Офис находится в самой оживлённой части города, в шаговой доступности от общественного транспорта, кафе и магазинов;
- Отличная транспортная доступность гарантирует легкий доступ для ваших клиентов и сотрудников;
- Комфортное пространство для размещения 50 сотрудников;
- Цена за 1кв.м./83000р.
- Офис представлен двумя этажами, 1 этаж - 72кв.м., 2 этаж - 350кв.м.;
- Первый этаж можно использовать как офис продаж или торговое пространство для демонстрации вашей продукции;
- Имеет удобную планировку и высокие потолки 3,5 метра, что создает ощущение пространства и света.
- 2 отдельных входа;
- Фасад представлен сплошным, тонированным остеклением.
Готовы продемонстрировать офис. Давайте организуем встречу!
Подписывайтесь на наш аккаунт и получайте новости о новых объектах и изменении цен!
_______________________________________
Инвестиционное агентство "Главная улица"
| Сведения о недвижимости | |
|---|---|
| ID | 4823 |
| Возможное назначение | Офис |
| Тип здания | встроенное помещение |
| Тип парковки | На улице |
| Отделка помещения коммерческая | Чистовая |
| Тип коммерческой | Офисное помещение |
| Площадь, кв.м. | 421 |
| Этаж | 1 |
| Этажность | 16 |
| Стоимость | 35 200 000 руб. |







