Готовый арендный бизнес
| Населенный пункт | Тюмень |
|---|---|
| Улица | улица Депутатская |
| Номер дома | 80 |
Описание
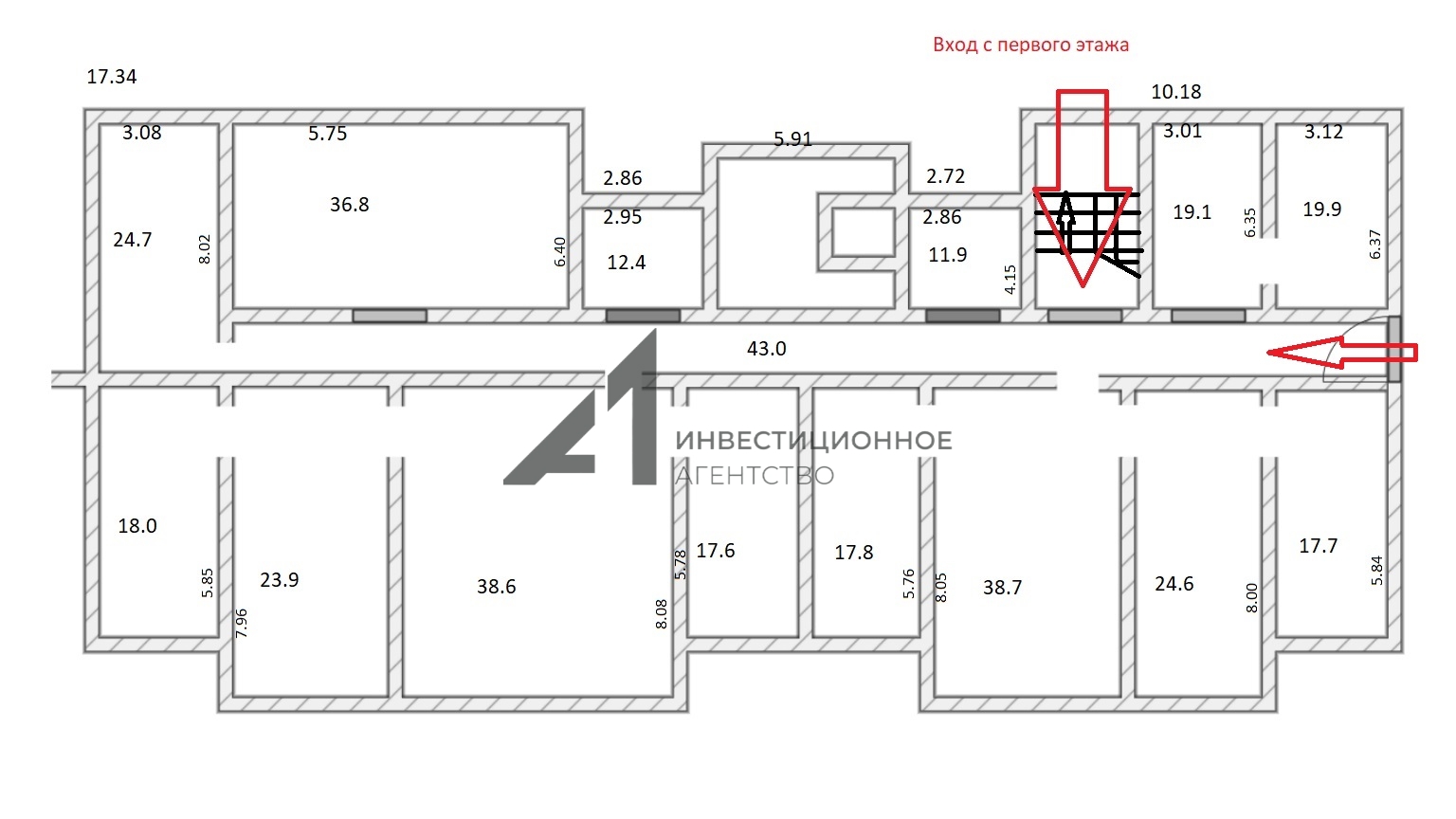
Продажа помещения на 1 этаже общей площадью 372 м²
БЕЗ КОМИССИИ ДЛЯ ПОКУПАТЕЛЯ
Основные характеристики и преимущества:
- ПОМЕЩЕНИЕ АРЕНДУЕТ ФЕДЕРАЛЬНАЯ СЕТЬ "ЯНДЕКС ЛАВКА"
- 3 отдельных входа (ОСНОВНОЙ, крыльцо с пандусом и запасной);
- Свой тепло узел (система отопления не связана с обще домовой);
- 2 кабеля ввода (основной и резервный) заведены напрямую от ТП;
- мощность электроэнергии 75 кВт;
- место для вывески;
- хорошая транспортная доступность;
- высота потолков 2,6 м.
- наличие парковки.
- ОКУПАЕМОСТЬ с учетом индексации 10,3 года!!!
В собственности подвальный этаж идентичной площади, который включен в стоимость сделки в виде бонуса!
А значит можно провести неограниченное количество мокрых точек!!
Подпишитесь на наш аккаунт на Авито, чтобы быть в курсе скидок и акций
Возможно, вы искали:
Готовый арендный бизнес, ГАБ, ПСН, помещения свободного назначения, коммерческая недвижимость, коммерческое помещение, торговая недвижимость, продажа нежилого помещения, купить торговую площадь, помещение под торговлю, купить коммерческую недвижимость в Тюмени, продажа коммерческой недвижимости в Тюмени, купить нежилое помещение в Тюмени, инвестиции в недвижимость, вложения в недвижимость, ипотека на коммерческую недвижимость
Продажа готового арендного бизнеса, продажа коммерческой недвижимости и помещений свободного назначения: как выгодно продать и инвестировать.
Узнайте, как правильно продать коммерческое помещение или торговую недвижимость, включая нежилые помещения в Тюмени. Получите советы по продаже и вложению в объекты недвижимости, чтобы максимизировать прибыль. Оценка инвестиционных возможностей и использование ипотеки для эффективных финансовых решений при продаже объектов недвижимости.
______________
Инвестиционное агентство "Главная улица"
| Сведения о недвижимости | |
|---|---|
| ID | 4586 |
| Тип здания | Жилой дом |
| Тип парковки | На улице |
| Отделка помещения коммерческая | Чистовая |
| Виды отопления avito | Центральное |
| Тип коммерческой | Готовый бизнес |
| Площадь, кв.м. | 372 |
| Этаж | 1 |
| Этажность | 9 |
| Стоимость | 49 999 999 руб. |





