Помещение на 1й линии, на трафике
| Населенный пункт | Тюмень |
|---|---|
| Район города | Восточный |
| Улица | улица Олимпийская |
| Номер дома | 51 |
Описание
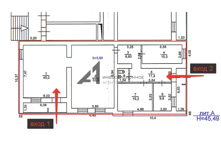
Возможность снять помещение 165 кв.м. на мощном пешем и транспортном трафике
Арендатор комиссию не платит!
- Очень плотно заселенный район
- 1й этаж жилого дома
- 1я линия
- Рядом со светофором и пешеходным переходом
- Без барьерный вход с уровня земли
- две большие парковки перед домом
- сетевой арендатор по соседству
- два входа
- Смешанная планировка - два больших зала и несколько небольших кабинетов
- все помещения с окнами
- кондиционер, общедомовая вытяжка - коммерческой НЕТ
- косметический ремонт
- отличная ставка
- место для большой и яркой вывески
- мощность электричества 14, 7 кВт
Подпишитесь на наш аккаунт на Авито, чтобы быть в курсе скидок и акций
Возможно, вы искали:
Готовый арендный бизнес, ГАБ, ПСН, помещения свободного назначения, коммерческая недвижимость, коммерческое помещение, торговая недвижимость, продажа нежилого помещения, купить торговую площадь, помещение под торговлю, купить коммерческую недвижимость в Тюмени, продажа коммерческой недвижимости в Тюмени, купить нежилое помещение в Тюмени, инвестиции в недвижимость, вложения в недвижимость, ипотека на коммерческую недвижимость
Продажа готового арендного бизнеса, продажа коммерческой недвижимости и помещений свободного назначения: как выгодно продать и инвестировать.
Узнайте, как правильно продать коммерческое помещение или торговую недвижимость, включая нежилые помещения в Тюмени. Получите советы по продаже и вложению в объекты недвижимости, чтобы максимизировать прибыль. Оценка инвестиционных возможностей и использование ипотеки для эффективных финансовых решений при продаже объектов недвижимости.
Подписывайтесь на наш аккаунт и следите за обновлениями!
________________________________________
Инвестиционное агентство "Главная улица"
| Сведения о недвижимости | |
|---|---|
| ID | 5872 |
| Коммунальные услуги включены | Нет |
| Возможное назначение | Офис |
| Тип здания | Жилой дом |
| Тип парковки | На улице |
| Отделка помещения коммерческая | Офисная |
| Удаленность от дороги (авито) | Первая линия |
| Этаж дополнительно (авито) | Несколько этажей |
| Мощность электросети, в кВт | 15 |
| Арендные каникулы | Есть |
| Возможная нарезка - Площадь дополнительно | Есть |
| Виды отопления avito | Центральное |
| Тип коммерческой | Помещение свободного назначения |
| Площадь, кв.м. | 165.7 |
| Этаж | 1 |
| Этажность | 14 |
| Стоимость | 198 840 руб. |







