Офис в топовом центральном ЖК с НДС 22%
| Населенный пункт | Тюмень |
|---|---|
| Район города | Центральный |
| Улица | улица Причальная |
| Номер дома | 9 |
Описание
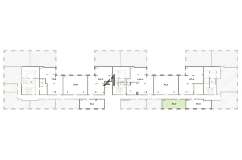
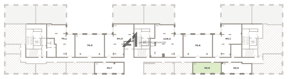
Продам офис 35,8м2 в ЖК Речной Порт. Без комиссии для покупателя.
- 3 минуты от географического центра города
- центр развития и преображения города
- Лучший жилой комплекс-новостройка в РФ в 2026 году (премия ТОП ЖК 2026)
- МОПы и санузлы с современным ремонтом от застройщика
- Статусные соседи.
- НДС 22%
- Возможна покупка в лизинг
| Сведения о недвижимости | |
|---|---|
| ID | 6511 |
| Возможное назначение | Офис |
| Тип здания | Жилой дом |
| Тип парковки | На улице |
| Отделка помещения коммерческая | Офисная |
| Удаленность от дороги (авито) | Первая линия |
| Этаж дополнительно (авито) | Несколько этажей |
| Мощность электросети, в кВт | 10 |
| Арендные каникулы | Нет |
| Виды отопления avito | Центральное |
| Отопление - коммерческая avito | Центральное |
| Тип коммерческой | Офисное помещение, Помещение свободного назначения, Помещения свободного назначения |
| Площадь, кв.м. | 35.8 |
| Этаж | 2 |
| Этажность | 9 |
| Стоимость | 9 530 000 руб. |






