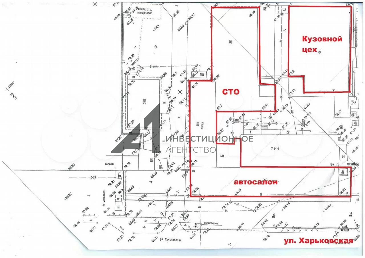
Аренда автоцентра
| Населенный пункт | Тюмень |
|---|---|
| Район города | Ленинский |
| Улица | улица Харьковская |
| Номер дома | 77 |
Описание
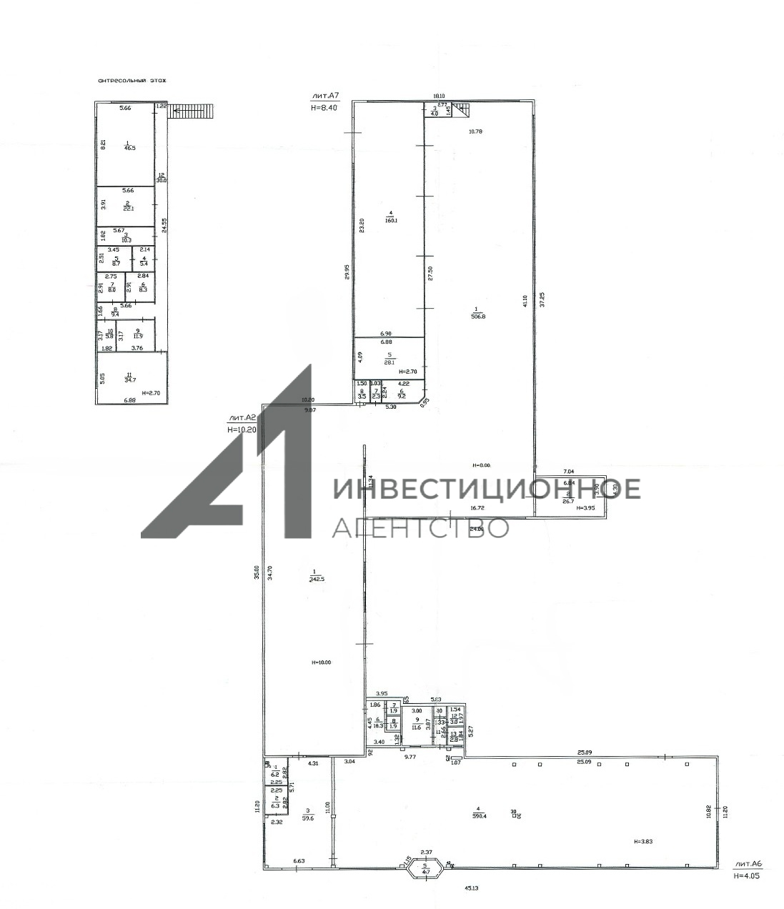
Сдается в аренду СТО площадью 1 298,4 м²
БЕЗ КОМИССИИ ДЛЯ АРЕНДАТОРОВ
Основные характеристики и преимущества:
- мощность электричества 120 кВт;
- БОЛЕЕ 20 ЛЕТ В ДАННОЙ ЛОКАЦИИ
- ПОЛНОСТЬЮ ОБОРУДОВАН от ключей до подъемников
- система кондиционирования;
- система очистки стоков;
- система вентиляции выхлопных газов;
- 2 поста мойки автомобилей.
Сдается в аренду как целиком, так и отдельными помещениями:
1. Помещение СТО площадью 356.6 м²
2. Помещение СТО площадью 941.8 м²
Подпишитесь на наш аккаунт на Авито, чтобы быть в курсе скидок и акций
Возможно, вы искали:
Готовый арендный бизнес, ГАБ, ПСН, помещения свободного назначения, коммерческая недвижимость, коммерческое помещение, торговая недвижимость, продажа нежилого помещения, купить торговую площадь, помещение под торговлю, купить коммерческую недвижимость в Тюмени, продажа коммерческой недвижимости в Тюмени, купить нежилое помещение в Тюмени, инвестиции в недвижимость, вложения в недвижимость, ипотека на коммерческую недвижимость
Продажа готового арендного бизнеса, продажа коммерческой недвижимости и помещений свободного назначения: как выгодно продать и инвестировать.
Узнайте, как правильно продать коммерческое помещение или торговую недвижимость, включая нежилые помещения в Тюмени. Получите советы по продаже и вложению в объекты недвижимости, чтобы максимизировать прибыль. Оценка инвестиционных возможностей и использование ипотеки для эффективных финансовых решений при продаже объектов недвижимости.
______________
Инвестиционное агентство "Главная улица"
| Сведения о недвижимости | |
|---|---|
| ID | 5873 |
| Коммунальные услуги включены | Нет |
| Возможное назначение | Автосервис |
| Тип здания | Административное здание |
| Тип парковки | На улице |
| Отделка помещения коммерческая | Чистовая |
| Удаленность от дороги (авито) | Первая линия |
| Мощность электросети, в кВт | 120 |
| Виды отопления avito | Газовое |
| Тип коммерческой | Здание |
| Площадь, кв.м. | 1298.4 |
| Этаж | 1 |
| Этажность | 1 |
| Стоимость | 1 100 000 руб. |













