ОФИС в Бизнес-центре класса А
| Населенный пункт | Тюмень |
|---|---|
| Район города | Калининский |
| Улица | улица Герцена |
| Номер дома | 70 |
Описание
Предлагаем к аренде офисные площади в престижном Бизнес-Центре.
Без комиссии для арендатора
Основные характеристики и преимущества:
- бизнес-центр класса А на пересечении улиц Герцена и Первомайской;
- первая линия в центре города;
- наличие подземной и наземной парковки;
- близость остановок общественного транспорта;
- в офисе высокие потолки, очень светлые помещения;
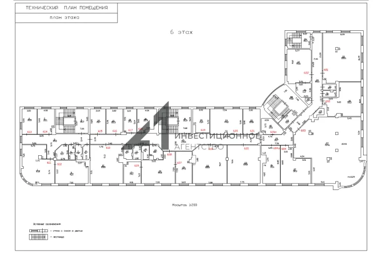
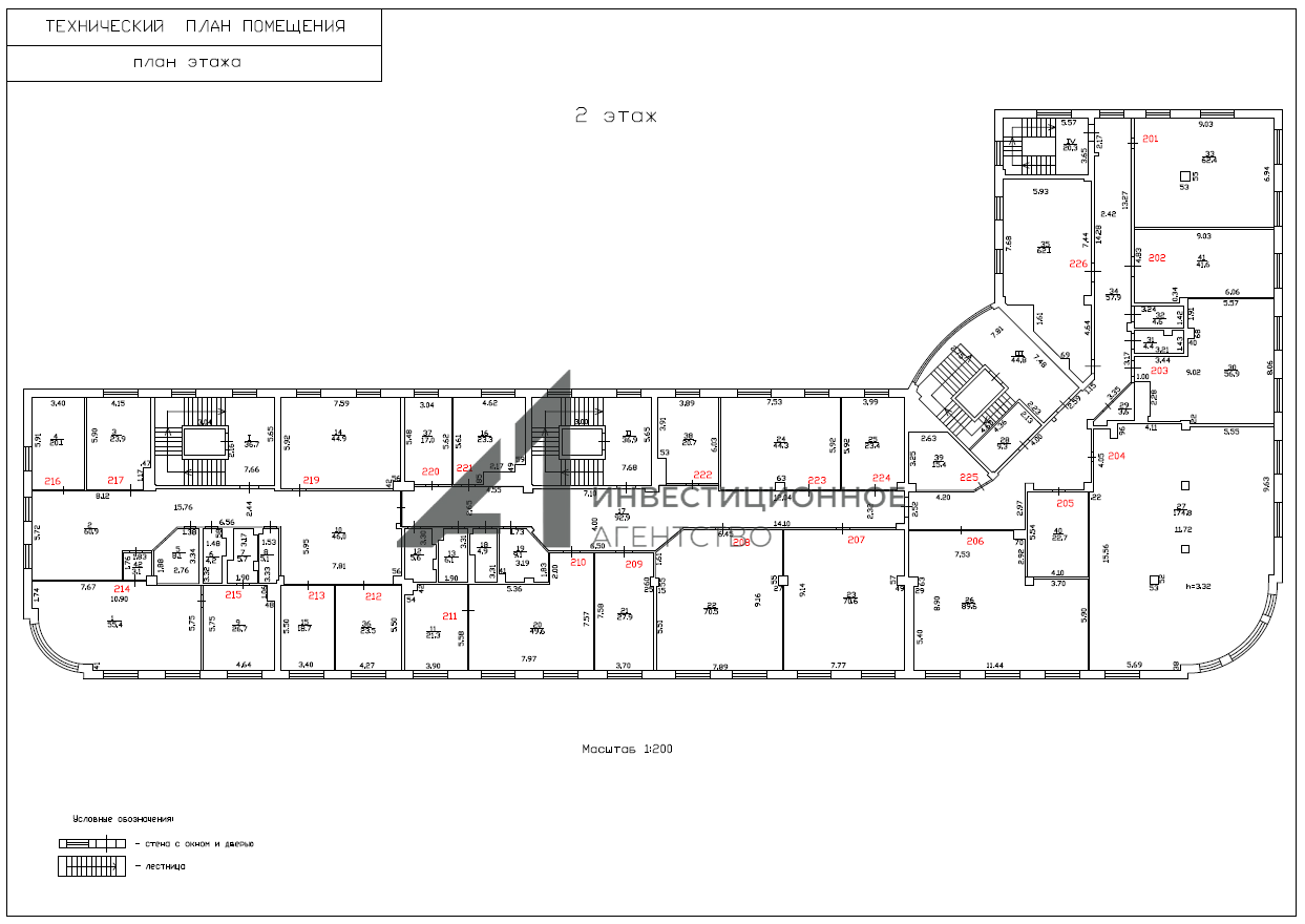
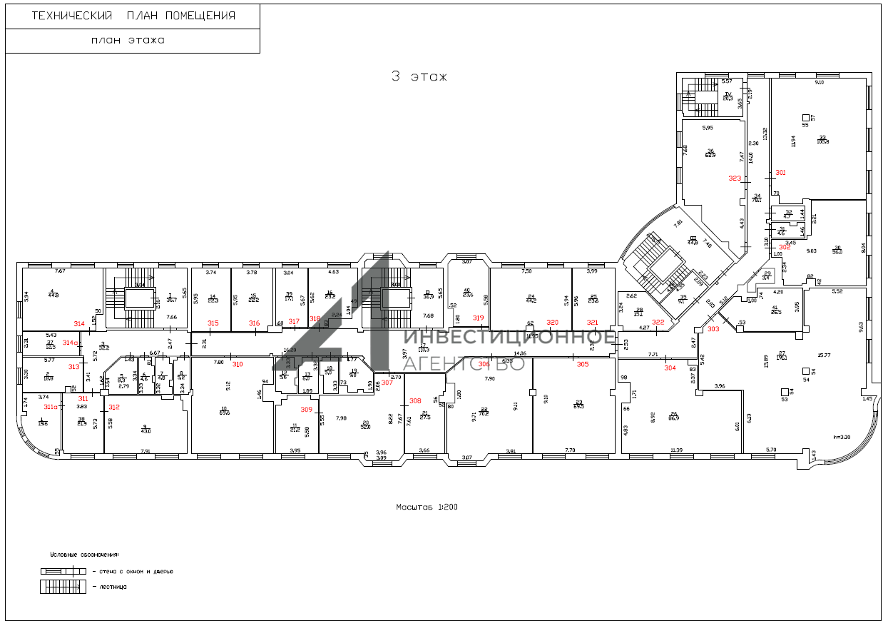
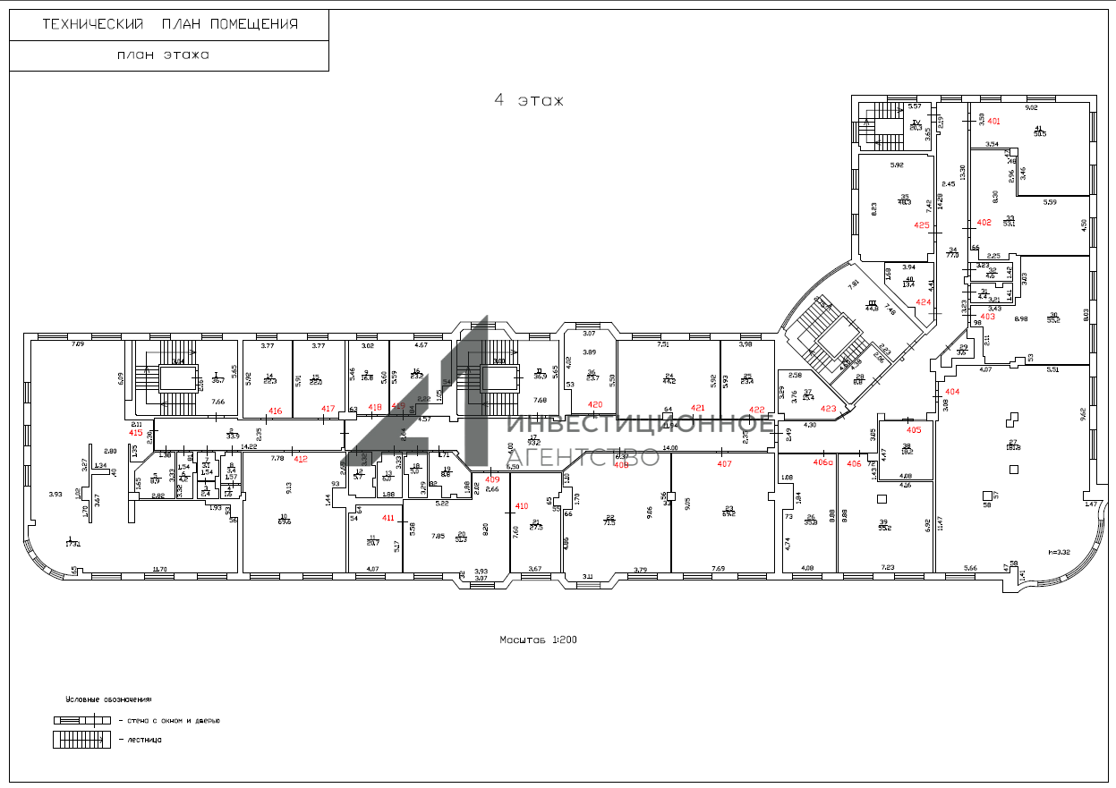
- площадь одного этажа 1600 м2, можно арендовать один или несколько этажей;
- в стоимость аренды все включено, в т.ч. коммунальные и эксплуатационные услуги, клининг;
Готовы ответить на Ваши вопросы. До встречи на показе.
Подписывайтесь на наш аккаунт и получайте новости о новых объектах и изменении цен!
Возможно, вы искали:
Готовый арендный бизнес, ГАБ, ПСН, помещения свободного назначения, коммерческая недвижимость, коммерческое помещение, торговая недвижимость, продажа нежилого помещения, купить торговую площадь, помещение под торговлю, купить коммерческую недвижимость в Тюмени, продажа коммерческой недвижимости в Тюмени, купить нежилое помещение в Тюмени, инвестиции в недвижимость, вложения в недвижимость, ипотека на коммерческую недвижимость
Продажа готового арендного бизнеса, продажа коммерческой недвижимости и помещений свободного назначения: как выгодно продать и инвестировать.
Узнайте, как правильно продать коммерческое помещение или торговую недвижимость, включая нежилые помещения в Тюмени. Получите советы по продаже и вложению в объекты недвижимости, чтобы максимизировать прибыль. Оценка инвестиционных возможностей и использование ипотеки для эффективных финансовых решений при продаже объектов недвижимости.
_______________________________________
Инвестиционное агентство "Главная улица"
| Сведения о недвижимости | |
|---|---|
| ID | 6366 |
| Коммунальные услуги включены | Да |
| Возможное назначение | Офис |
| Тип здания | Бизнес-центр |
| Тип парковки | На улице |
| Отделка помещения коммерческая | Офисная |
| Тип коммерческой | Офисное помещение |
| Площадь, кв.м. | 8000 |
| Этаж | 2 |
| Этажность | 6 |
| Стоимость | 13 200 000 руб. |






















