ОФИС с красивым видом
| Населенный пункт | Тюмень |
|---|---|
| Район города | Восточный |
| Улица | улица 30 лет Победы |
| Номер дома | 64 |
Описание
Предлагаем к аренде офисные площади в Бизнес-Центре.
Без комиссии для арендатора
Основные характеристики и преимущества:
- бизнес-центр класса А на пересечении улиц 30 лет Победы и Пермякова;
- первая линия;
- хорошая транспортная развязка;
- 220 парковочных машиномест;
- близость остановок общественного транспорта;
- в офисе высокие потолки, очень светлые помещения;
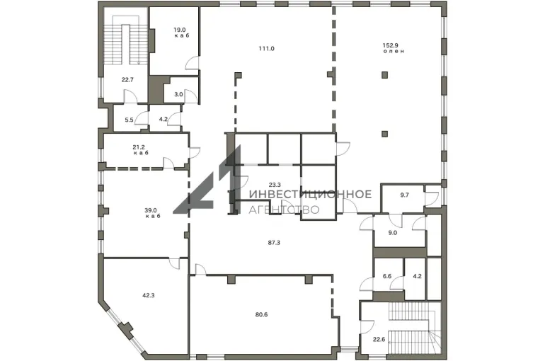
- 70% площади open space и 30% кабинетная кабинеты;
- возможность планировать пространство под свои потребности, полезная площадь этажа 600 кв.м;
Готовы ответить на Ваши вопросы. До встречи на показе.
Подписывайтесь на наш аккаунт и получайте новости о новых объектах и изменении цен!
Возможно, вы искали:
Готовый арендный бизнес, ГАБ, ПСН, помещения свободного назначения, коммерческая недвижимость, коммерческое помещение, торговая недвижимость, продажа нежилого помещения, купить торговую площадь, помещение под торговлю, купить коммерческую недвижимость в Тюмени, продажа коммерческой недвижимости в Тюмени, купить нежилое помещение в Тюмени, инвестиции в недвижимость, вложения в недвижимость, ипотека на коммерческую недвижимость
Продажа готового арендного бизнеса, продажа коммерческой недвижимости и помещений свободного назначения: как выгодно продать и инвестировать.
Узнайте, как правильно продать коммерческое помещение или торговую недвижимость, включая нежилые помещения в Тюмени. Получите советы по продаже и вложению в объекты недвижимости, чтобы максимизировать прибыль. Оценка инвестиционных возможностей и использование ипотеки для эффективных финансовых решений при продаже объектов недвижимости.
_______________________________________
Инвестиционное агентство "Главная улица"
| Сведения о недвижимости | |
|---|---|
| ID | 4272 |
| Коммунальные услуги включены | Нет |
| Возможное назначение | Офис |
| Тип здания | Бизнес-центр |
| Тип парковки | На улице |
| Отделка помещения коммерческая | Офисная |
| Удаленность от дороги (авито) | Первая линия |
| Виды отопления avito | Газовое |
| Отопление - коммерческая avito | Автономное |
| Тип коммерческой | Офисное помещение |
| Площадь, кв.м. | 600 |
| Этаж | 9 |
| Этажность | 18 |
| Стоимость | 720 000 руб. |








